Located in the heart of Montreal’s Mile-Ex district, Galerie FOIL is a singular destination where contemporary art engages with everyday life. The adaptive reuse project led by Atelier L’Abri, revitalizes two vacant suites within a century-old industrial building to reveal its full historical, cultural, and material value. Founded by artists Fvckrender (Frédéric Duquette) and Baeige (Jo-Anie Charland), the hybrid space combines an art gallery and a neighbourhood café, weaving together exhibition, hospitality, and sensory experience. As a space for expression, gathering, and discovery, FOIL (Finer Objects in Life) reflects a commitment to making art accessible, vibrant, and rooted in the community. Directly connected to the new Parc des Gorilles, the gallery contributes to the transformation of a changing neighbourhood, exemplifying how reimagining our built heritage can become a driver of creativity, preservation, and social connection.
Built in the 1910s, the building that now houses Galerie FOIL is a witness to the industrial history of the Marconi-Alexandra sector. Initially operated by the Canadian Explosives Limited (CXL), it served as an ammunitions factory during the First World War. The site also bears the memory of working-class labour during the Second World War, when women played a vital role in the war effort. A rare and valuable example of the area’s early 20th-century industrial architecture, the building features a spectacular sawtooth roof supported by large clerestory timber trusses. This remarkable element of architecture rests on an exposed raw concrete structure that frames the interior spaces.
Neglected for many years, the factory faced the threat of demolition under development pressure. Its transformation began with the recent arrival of new businesses along its distinctive row of industrial suites opening onto a short dead-end section of Waverly Street, historically interrupted by the Canadian Pacific railway line. The diagonal path once carved by the tracks gives the site a unique character and informed the layout of Parc des Gorilles, inaugurated in 2024. This public park emerged from a local grassroots movement to preserve the urban wasteland which led the city to reclaim the area and reintroduce green space into the urban fabric.The transformation carried out through the FOIL project therefore becomes part of a broader effort to restore both the building and the site to an active role in the city. It pays tribute to the material and human heritage of the place by turning it into a cultural space open to the public.
The architectural intervention by Atelier L’Abri is based on a sensitive reading of the existing building. It reveals the raw character of the factory, adapts it to new uses, and respects the site’s industrial legacy while projecting the gallery into a contemporary and evolving context.
The project preserves and sublimes the original structure. Once concealed under layers of paint, the building’s essential material framework is revealed. The wood plank ceilings, massive timber trusses, concrete beams and columns are carefully sandblasted to recover their natural tones and century-old textures. The concrete slab floor is cleaned and sealed, preserving and exposing to visitors the layered traces of over a hundred years of use and history. New skylights are opened in the roof to bring in natural light, reactivating the spatial potential of the sawtooth volume, which had been long obscured over time.
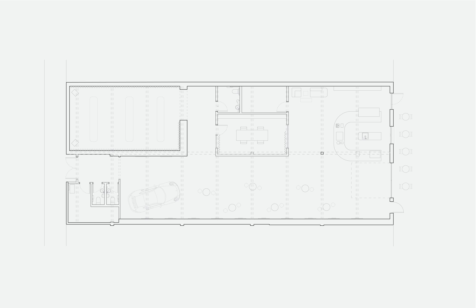
An abstract metal cube, brushed by hand, is inserted at the core of the space and organizes the gallery’s public areas while housing its private functions without interrupting the legibility of the existing structure. The white-painted peripheral acoustic walls provide flexible exhibition surfaces and a sharp contrast with the preserved textures of the floor and ceiling. The overall approach follows principles of revalorisation, material sobriety, and contextual coherence, demonstrating how the intelligent reuse of heritage buildings can meaningfully address contemporary challenges in urban development and the sustainable transformation of former industrial sites.
At the front of the reconverted space, a luminous café opens onto Parc des Gorilles through a large glass garage door, welcoming visitors into a setting that is both raw and refined. The curved counter, with soft minimalist lines, is finished in artisanal microcement that complements the material language of the space. At the rear, a closed projection room offers an intimate setting for audiovisual works and immersive events. The custom café furniture, produced by Montreal designer Raymond Raymond, adds a warm and sober functionalism that counterpoints to the rigour of the existing structure. The metal volume also houses a meeting room and workspace, furnished with a large table by local woodworker Essai Mobilier and Danish Vipp chairs, articulating an aesthetic that bridges local craft and timeless design references.
More than just an exhibition space, FOIL offers a multifaceted, inclusive, and sensorial art experience. Its programming features both digital and physical works by the founding artists, Fvckrender and Baeige, and showcases a rotation of contemporary creators, including J3000, Vincent Tsang, Andrea Wilkin, Victor Mosquera, and Zoë Winters for the inaugural exhibition. A restored 1970 Porsche Targa, positioned at the centre of the space, acts as a sculptural centerpiece, blurring the lines between art, design, culture, and history. The sensory dimension is meticulously composed: a soundscape by Olivier Lamontagne (The Holy), a custom fragrance by New York-based perfumery D.S. & Durga, locally roasted coffee by ZAB Café, and pastries by Mélilot. All come together to create a fully immersive experience.
As a space for gatherings and cultural events, FOIL also hosts launches, screenings, and festive mornings like AM:PLIFIED, monthly DJ sets with croissants in a relaxed and vibrant atmosphere. Conceived as an open, evolving platform, the gallery redefines the traditional role of art venues, positioning itself as a creative laboratory rooted in its neighbourhood, at the intersection of contemporary practice, conviviality, and artistic exploration. FOIL asserts itself, with quiet confidence, as a new voice on Montreal’s cultural scene. It celebrates beauty in its purest form: a tribute to the finer objects in life.